- First floor apartment
- Two double bedrooms
- Open plan kitchen living area
- 654 square foot
- Amazing location
- Leasehold
- Bright and airy
- Generous proportions
- Viewing recommended
- Close to shops and transports
Full Description
Welcome to Fernhead Road, great two bedroom first floor apartment in W9
Welcome to Fernhead Road, a great two bedroom apartment set on this ever-popular road in W9.
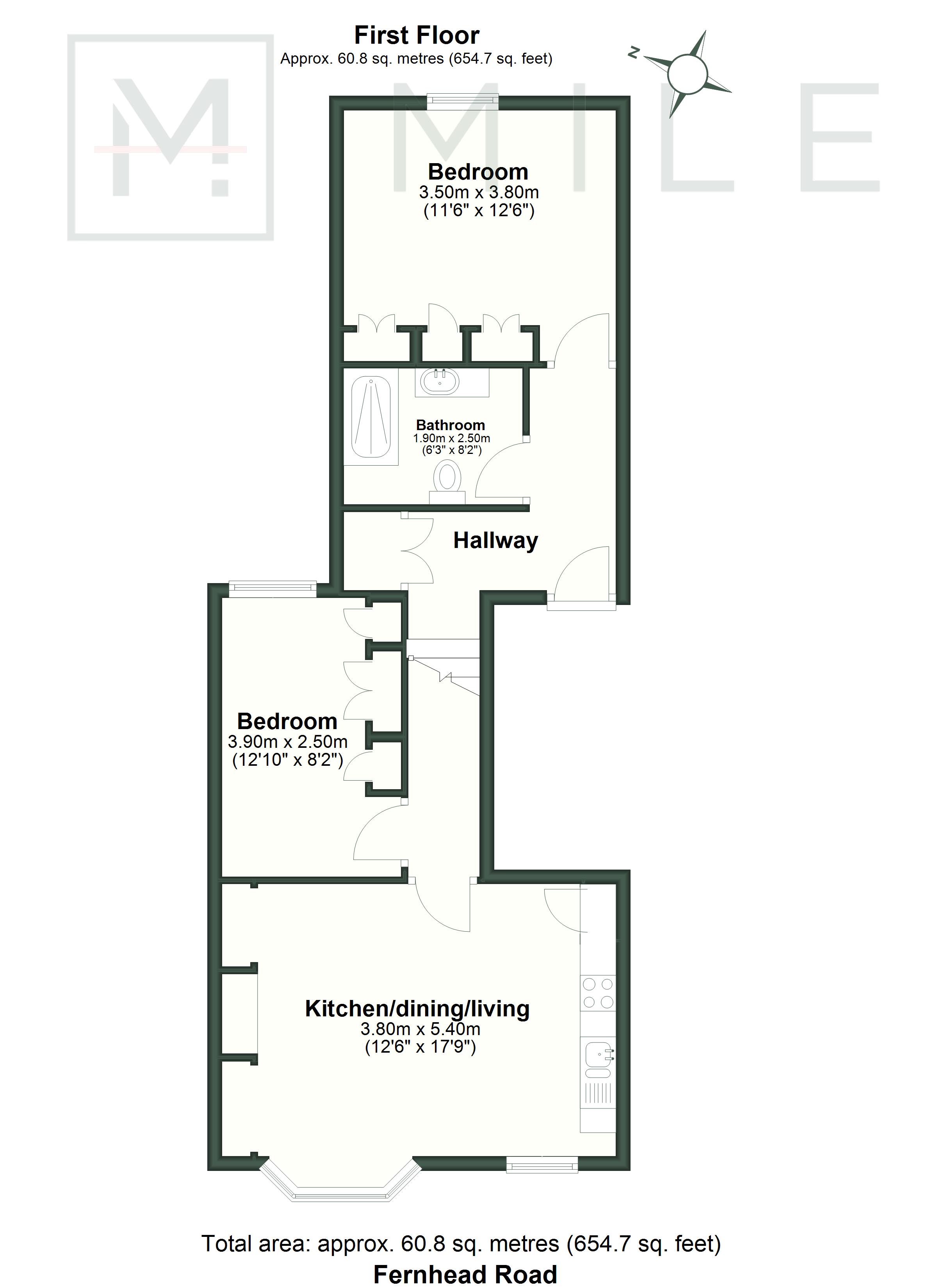
Offering a generous 654 sq ft of well-balanced accommodation, the property comprises two genuine double bedrooms, a spacious bathroom, and a bright open-plan kitchen/living area ideal for both everyday living and entertaining. The layout makes excellent use of the space, giving a comfortable and practical feel throughout.
Fernhead Road is superbly positioned on the borders of Maida Vale, Queen's Park, Kensal Rise and within easy reach of St John's Wood, giving you access to some of North West London's most desirable neighbourhoods. You're moments from a fantastic selection of independent cafés, restaurants and local amenities, as well as excellent transport links into Central London. Green open spaces are also close by, making this an ideal spot for both professionals and sharers alike.
Viewing
Please contact us on 020 8968 6000 option2 if you wish to arrange a viewing appointment for this property, or require further information.
Disclaimer
Mile Estate Agents endeavour to maintain accurate depictions of properties in Virtual Tours, Floor Plans and descriptions, however, these are intended only as a guide and purchasers must satisfy themselves by personal inspection.
Welcome to Fernhead Road, a great two bedroom apartment set on this ever-popular road in W9.
Offering a generous 654 sq ft of well-balanced accommodation, the property comprises two genuine double bedrooms, a spacious bathroom, and a bright open-plan kitchen/living area ideal for both everyday living and entertaining. The layout makes excellent use of the space, giving a comfortable and practical feel throughout.
Fernhead Road is superbly positioned on the borders of Maida Vale, Queen's Park, Kensal Rise and within easy reach of St John's Wood, giving you access to some of North West London's most desirable neighbourhoods. You're moments from a fantastic selection of independent cafés, restaurants and local amenities, as well as excellent transport links into Central London. Green open spaces are also close by, making this an ideal spot for both professionals and sharers alike.
Viewing
Please contact us on 020 8968 6000 option2 if you wish to arrange a viewing appointment for this property, or require further information.
Disclaimer
Mile Estate Agents endeavour to maintain accurate depictions of properties in Virtual Tours, Floor Plans and descriptions, however, these are intended only as a guide and purchasers must satisfy themselves by personal inspection.

