- Superb garden apartment
- Two double bedrooms
- Great 20ft south facing garden
- Excellent condition
- Long lease
- Chain free
- Contemporary separate kitchen
- Double glazed windows
- Fantastic location
- Close to shops and transports
Full Description
Welcome to Sellons Avenue this sublime garden flat set on the ground floor of this Edwardian conversion.
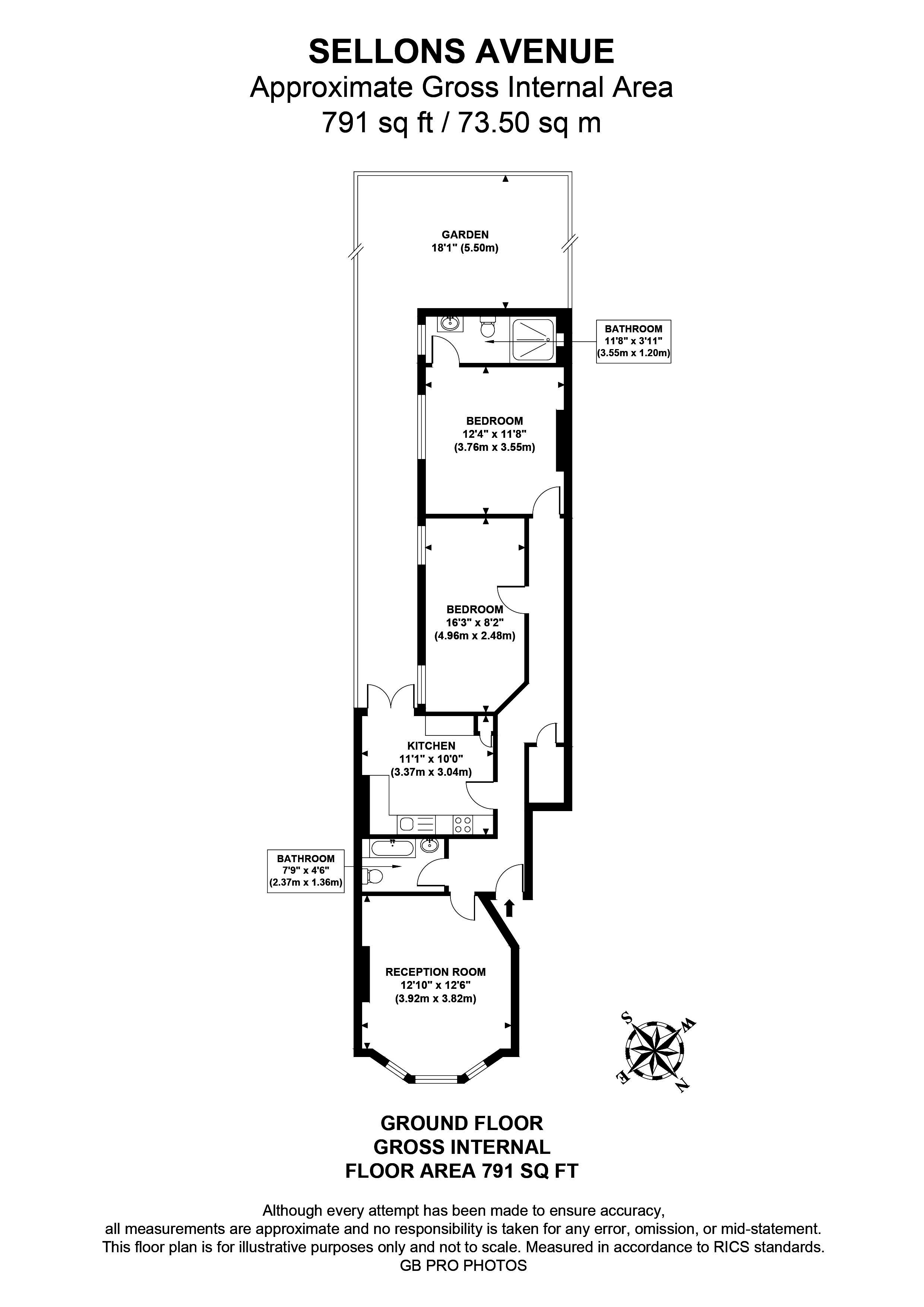
This lovely property comprises of a living-room with bay windows, a contemporary fully fitted kitchen, two double bedrooms, a modern three piece family bathroom and an additional ensuite.
There is access through the kitchen onto a great 20ft (approx.) south / west facing garden.
Newly refurbished to a very high standard, the property boasts wood flooring and carpet throughout, double glazed windows, high ceilings and an abundance of light and storage space.
The property is chain free, sold with the share of freehold and there is also the possibility to extend the side and back of the property (STPP).
Sellons Avenue is ideally positioned close to all the local amenities of Harlesden is within easy reach of a wide selection of shops, bars and restaurants of Willesden Junction. Maple Walk school and Roundwood Park open space are only a few minutes walk from the property. The nearest station is Willesden Junction (Bakerloo line / Overground).
RECEPTION ROOM 14' 5" x 12' 6" (4.39m x 3.81m)
BATHROOM 7' 9" x 4' 5" (2.36m x 1.35m)
KITCHEN 11' x 10' (3.35m x 3.05m)
BEDROOM 16' 3" x 8' 2" (4.95m x 2.49m)
BEDROOM 12' 3" x 11' 6" (3.73m x 3.51m)
ENSUITE 11' 6" x 3' 10" (3.51m x 1.17m)
Viewing
Please contact us on 020 8968 6000 option2 if you wish to arrange a viewing appointment for this property, or require further information.
Energy Performance Certificate
Click here to view the Energy Efficiency Rating and Environmental Impact Rating for this property.
Disclaimer
Mile Estate Agents endeavour to maintain accurate depictions of properties in Virtual Tours, Floor Plans and descriptions, however, these are intended only as a guide and purchasers must satisfy themselves by personal inspection.
This lovely property comprises of a living-room with bay windows, a contemporary fully fitted kitchen, two double bedrooms, a modern three piece family bathroom and an additional ensuite.
There is access through the kitchen onto a great 20ft (approx.) south / west facing garden.
Newly refurbished to a very high standard, the property boasts wood flooring and carpet throughout, double glazed windows, high ceilings and an abundance of light and storage space.
The property is chain free, sold with the share of freehold and there is also the possibility to extend the side and back of the property (STPP).
Sellons Avenue is ideally positioned close to all the local amenities of Harlesden is within easy reach of a wide selection of shops, bars and restaurants of Willesden Junction. Maple Walk school and Roundwood Park open space are only a few minutes walk from the property. The nearest station is Willesden Junction (Bakerloo line / Overground).
RECEPTION ROOM 14' 5" x 12' 6" (4.39m x 3.81m)
BATHROOM 7' 9" x 4' 5" (2.36m x 1.35m)
KITCHEN 11' x 10' (3.35m x 3.05m)
BEDROOM 16' 3" x 8' 2" (4.95m x 2.49m)
BEDROOM 12' 3" x 11' 6" (3.73m x 3.51m)
ENSUITE 11' 6" x 3' 10" (3.51m x 1.17m)
Viewing
Please contact us on 020 8968 6000 option2 if you wish to arrange a viewing appointment for this property, or require further information.
Energy Performance Certificate
Click here to view the Energy Efficiency Rating and Environmental Impact Rating for this property.
Disclaimer
Mile Estate Agents endeavour to maintain accurate depictions of properties in Virtual Tours, Floor Plans and descriptions, however, these are intended only as a guide and purchasers must satisfy themselves by personal inspection.

